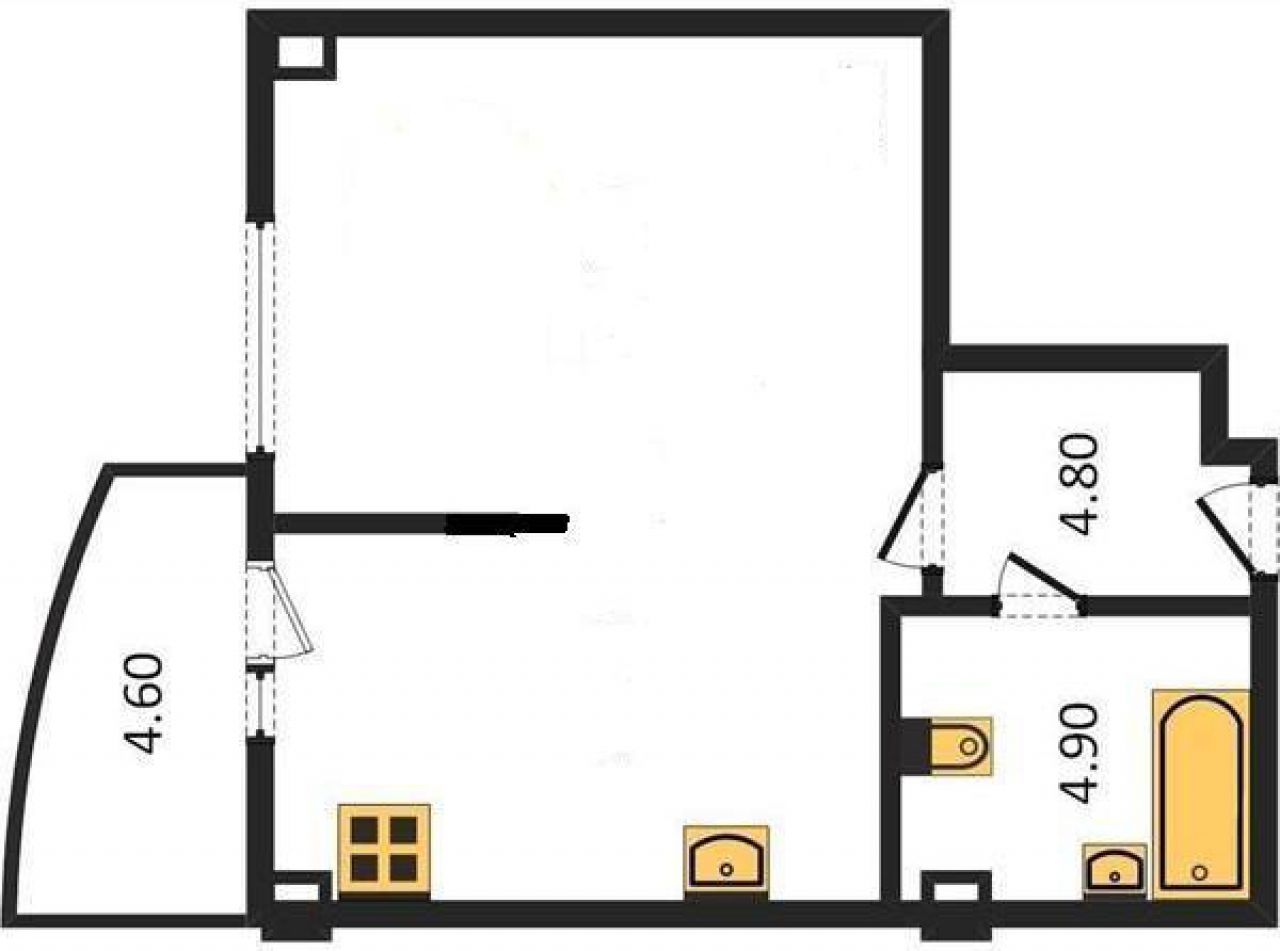
Уютная 1 комнатная квартира удобной планировки 37.3/17.2/8.9, продажа квартир Ростов-на-Дону, N 49732901

Реклама
Квартиры Ростов-на-Дону, Более месяца назад

Уютная 1 комнатная квартира удобной планировки 37.3/17.2/8.9 в современном жилом комплексе расположенном в центре города Ростова-на-Дону пер. Доломановский рядом пр. Текучева в 17 этажном каркасно-монолитном жилом доме. Жилой комплекс включает в себя 2 дома и прилегающую территорию с уютным двором, на первых этажах зданий будут расположены коммерческие организации. Комплекс оснащен собственной трансформаторной, автономной котельной и современными лифтовыми группами. что создает комфортное проживание жальцам. Жилой комплекс расположен в тихом уютном месте с удобной транспортной развязкой на незначительном расстоянии от основных магистралей, что позволяет добраться без труда в любое место города автомобилем или муниципальным транспортом. В шаговой доступности находится все самое необходимое для полноценной жизни. В доступной близости находятся школы и детские дошкольные учреждения, есть высшие и средние учебные заведения, больницы и поликлиники, государственные учреждения и офисы крупных компаний, банки, аптеки, рынок и многочисленные магазины. Дом сдан в эксплуатацию.
Контактное лицо: Сергей Алексеевич
Каталожный номер: 513299704
Ипотека предоставляется ПАО "Сбербанк России" (генеральная лицензия Банка России № 1481 от 11.08.2015 г.)
Проектная декларация по объекту недвижимости доступна в офисе по адресу: ул. Вятская 41
При совершении сделки через ЛЕНДЛОРД Вы можете получить Гарантийный сертификат, обеспечивающий правовую помощь в разрешении спорных ситуаций с застройщиком. BuyReklama.ru

Сделка:Продам
Кол-во комнат::1-комн.
Общая S, м2:37 /
Жилая S, м2:17.20 /
Кухни S, м2:8.90 м2
Этаж:10 /
Этажей в доме:17
Адрес:Доломановский
Район, метро:Октябрьский
Цена:2650000,00